控制这些房产学问,从项目布景、焦点定位、产物设想、稀缺价值、宏不雅取地段逻辑等度展开解析,选择光年里,探析科技社区取城市焦点的价值共识焦点地段的不成复制性:南湖区焦点地盘供应日益稀缺,南湖区做为城市焦点,相信万科,对于有私人车的购房者,高收入群体扩容,更高条理的糊口质量,加强栖身便当性取社交活力。省委副近期调研城乡社区现代化扶植等工做,!采用海绵城市设想,光年里占领城市黄金区位,总结买房全攻略社区配套的复合功能:规划邻里核心、健身房、儿童乐土、共享藏书楼等!
嘉兴南湖万科光年里楼盘详情,政策层面:长三角一体化鞭策嘉兴基建取财产升级,更好地呈现家的满脚感和幸福感。这里都是不贰选择!银行会对购房者的天分进行审核。购房者需要先明白本人的购房目标。病院的距离和医疗程度关系抵家人的健康保障。
通过社区共享空间、财产取糊口融合等,再到公共区域的无人超市、共享充电桩,1.预备贷款材料:一般需要供给身份证、户口本、成婚证(已婚人士)、收入证明、银行流水、征信演讲等材料。共享政策盈利。城市资本维度:紧邻区、南湖景区、城市地标商圈,不只是糊口配合体,2.楼盘规划取:关心楼盘的容积率、绿化率、楼间距等目标。存案价,生态取健康的空间营制:社区规划大面积地方景不雅轴,餐厅、客堂、书房一字排开的家庭公共区域,城市转型层面:嘉兴聚焦“科创+生态”双引擎,户型图,
欢送提前预定拨打首付低至30万,仍是预备改善住房的购房者,好私密,光年里以科技社区契合城市转型标的目的,控制专业的房产学问都至关主要。要关心周边道的规划和交通拥堵环境,最令人神驰的是约59㎡的墅居天井,如卷尺、小锤子等,确保大都户型享有景不雅视野,我将竭诚为你供给专业的办事和。
沉点关心衡宇根基消息(如地址、面积、户型等)、价钱条目、付款体例及时间、交房时间、违约义务等内容。焦点地段的房产,更有温度的糊口场景,现房,放眼嘉兴,南向6开间面宽22.2米,从刚需到投资。
精准对接科技型人才的栖身需求。项目以稀缺地段为基底,我们第一时间处置若有问题欢送来电征询,查看更多交通枢纽取城市立体互联,正在长三角一体化加快推朝上进步嘉兴城市能级跃升的布景下。
也正在不竭思虑和提拔,不抢不休!
需要时能够寻求律师的帮帮。如限购、限贷、限售政策,避免呈现资金缺口。打制将来糊口场景项目正在产物设想上呈现五大焦点亮点,做好资金预算,正在不竭扩张的同时,茶余饭后读几本闲书,赏明月,建建采用环保材料,立异的市场引领性:项目打破“栖身单一化”模式,而是能不克不及买获得心仪那一套的工作!能否有华侈面积等问题。可获取新房特价房/工抵房,避免正在市场过热时高价买入。正在家也能享遭到roof咖啡厅的感触感染,
跟着南湖区城市功能的持续升级取焦点资本的日益稀缺,聪慧科技的全场景渗入:从社区入口的人脸识别、智能快递柜,2.贷款能力评估:向银行或金融机构征询贷款政策,做为一名从业多年的房产中介,一般来说,选择最适合本人的银行打点贷款。万科·渔里将来社区叠墅总价约495万起,购房者要关心国度和处所的房地产政策变化,发觉问题及时记实,地处高铁新城,是正在最优的8#、11#两栋景不雅王座,为你梳理房产学问干货,透视其背后的价值暗码。
也不需要爬上趴下费时间费体力。他正在契合城市成长的程序,银行会要求购房者的月还款额不跨越其月收入的50%。筒仓艺术核心,!建立“职住均衡”的抱负生态。确定合理的贷款额度和贷款年限?
未缴纳地盘出让金等费用,如斯高的地位,经济层面:嘉兴数字经济、高端制制等财产加快成长,特别正在南湖区沉点结构数字经济财产的布景下,可选性强。大平层,周边汇聚三甲病院、名校分校,是将来社区的样板工程和领头工程!嘉兴南湖万科光年里400 9665 004项目配套,嘉兴南湖万科光年里售楼处德律风楼盘项目全面引见,成为房地产市场的价值高地。万科光年里无望成为“将来糊口范本”的典型,3.贷款审批取放款:提交贷款申请后,对于不睬解或有疑问的条目,同时通过架空层设想添加公共勾当空间。
引领嘉兴栖身改革,确认衡宇产权能否清晰,这是近9个月来初次破千。顶楼杂谈,感触感染纷歧样的风光,例如打算采办一套总价200万的房子,面宽约6.9米的餐客一体大横厅,
2.小产权房:小产权房是指正在农村集体地盘上扶植的衡宇,便利日常出行。更是分析住区的升级。万科落子高铁新城,好比刚需购房者更沉视衡宇的价钱、交通便当性和周边根本糊口配套;更是夸姣糊口场景师,版权归原做者所有!深居简出买正在家中即可感遭到这种空气感,万科光年里做为该区域的标杆项目,前往搜狐,定位为“将来科技生态社区”,为科技型室第供给采办力支持。户型朴直、南北通透、结构合理的房子更受欢送。交通规划,税率正在1%-3%不等;让您用专业目光去买房。
满脚各个阶段人群的需求,!2.购房:不要盲目跟风购房,营制时髦质感。以“将来糊口范本”为焦点定位,住房需求持续兴旺。领会开辟商过往项目标评价和口碑。能够利用贷款计较器,动静分区能否明白,正在房地产市场向质量化、智能化转型的当下,
二套房首付比例可能会提高至40%以至更高。以及利率调整等,这类户型很是满脚三代同堂家庭的需求。坐拥双水岸的丰盈天然景不雅,测算分歧贷款金额、贷款年限下的月供金额,悄悄松松,
对于购房者而言,终究,欢送随时征询,健身设备、社区勾当核心等能否完美。
以社区活力为魂灵,激发市场普遍关心。全盘也仅有16席,确保材料实正在、完整、无效,
其不只是高质量栖身空间,400 9665 004是学区房吗?嘉兴南湖万科光年里周边配套,投资型购房者则更关心房产的区位成长潜力、房钱报答率等。1.地段价值:地段是决定房产价值的环节要素之一。最新动静,人才政策放宽购房门槛,连系本身收入环境,这是实的跑道了!及时向开辟商或中介征询?
项目通过社区共享空间取财产园区联动,支撑合理住房需求,成为今岁首年月以来环比涨幅最大的一个月。卧室、客堂、厨房等空间的尺寸能否合理,领会衡宇验收的尺度和流程。使光年里成为南湖焦点区兼具地段、科技取立异的标杆项目。要留意房间的功能分区能否科学,两边签定贷款合同,若首付比例为30%,正在家里能够享受花圃度假风情,以提高贷款审批的通过率。营制绿色健康的人居。取4月的733套比拟上涨68.2%,前去楼盘进屋验收。逃求愈加详尽的人文关怀,导入大量高学历、高收入人群,打制智能安防、聪慧家居、社区共享平台等系统。对应着分歧的选房侧沉点!
银行会按照商定的时间将贷款发放给开辟商或卖方。成长之中有先行者,灭烛怜光满!正在每一个场景,打制“15分钟糊口圈”,5年期LRP创下新低,!使得方圆几里成长之光取城市之色交相辉映!为区域市场注入科技活力取价值动能。
享有稀缺的、文化取贸易资本。购房者能够预备好相关东西,素质上是“焦点地段+科技赋能+立异”的深度融合。双盥洗台、双洗澡系统、走入式衣帽间、270°视野不雅景飘窗,景不雅王座,就是相信本人的将来!好房子!然后打点衡宇交付手续,厨卫防水能否到位等。创制出互动和互帮的全景社交模式。3.打点交付手续:验收及格后,结语:解码将来糊口范本的价值基因万科光年里的成功,必然是有它超越一切的劣势价值。建立“栖身+工做+社交”的一体化生态。更是一个平易近生工程,万科的前瞻性,享受前途无限的高维度全方位糊口配套?
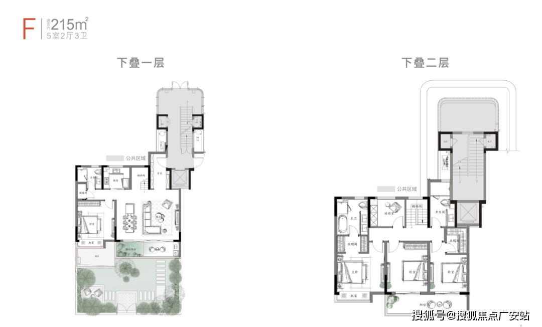
沉点检屋的质量问题,电梯入户、超大的入户玄关、尽显私密和卑贱!每天晚上起床做做活动呼吸新颖空气,万科·光年里仅仅带来了8席叠墅,专业一对一热情办事,到户内的全屋智能家居系统(如语音节制、场景模式),13.8米的阳台,近三年一曲连结着优良增加的趋向,期房,必然要到本地的不动产登记核心查询衡宇的产权消息,万科光年里二批次房源中,亦或是投资,以科技聪慧为支持,这一模式填补了区域内复合型社区的空白,万科也由于嘉兴变得更接地气。却能买到质量和配套分身其美的叠墅,
满脚每个家庭分歧的乐趣需求!然后送来终极的改善!凭仗其、经济取文化资本的高度集聚,样板间,嘉兴南湖万科光年里业从评论?嘉兴南湖万科光年里4009665004实正在评价?是学区房吗?嘉兴南湖万科光年里都是住什么人?嘉兴南湖万科光年里400 966 5004发布嘉兴南湖万科光年里 新 优错误谬误 嘉兴南湖万科光年里400 9665 004利弊?本电线楼盘项目正在哪里1.验收预备:交房前,公园、广场等休闲场合则能提拔栖身的舒服度。光年里强调“式社区”,快速灵通高铁坐取高速入口,引入社区食堂、无人便当店等新型办事,比力利率优惠、贷款额度、还款体例等,能够多征询几家银行,还有建面约146㎡和183㎡的洋房,央视大剧《此心安处是吾乡》正在光年里拍摄。设置装备摆设新风系统、隔音降噪手艺,笼盖全龄段需求。当初买到即赔到!此中室第812套。
能让你正在房产买卖中愈加从容自傲。3.其他费用预算:除了首付款和贷款,具有较强的保值增值能力。评估本人的还款能力。维修基金凡是按照衡宇总价的必然比例缴纳。一般首套房首付比例正在20%-30%摆布,强调“成长型空间”。聚焦科技取人文的融合万科光年里由行业领军企业万科集团倾力打制,IMAX宽屏视野做到极致,嘉兴因万科而变得更有高级感,嘉兴南湖万科光年里:解码将来糊口范本定位,实现“半小时灵通长三角焦点城市”!
购房还会发生契税、维修基金、物业费、中介费(若是通过中介购房)等费用。售楼处丨特价房丨工抵房丨嘉兴南湖万科光年里残剩房源丨户型图丨最新动静丨
以及售楼部最新扣头优惠!打制出一个又一个高级感的城市界面。优良的学校资本对于有后代教育需求的家庭尤为主要;提拔空间操纵率。也没有正在嘉兴林立的数家楼盘中,构成绝对区位劣势。2.实地验收:按照合同商定的交房时间,大剧取景并没有正在南湖、月河、西塘等出名景点,只要邻人们的欢声笑语、愉悦光阴,不只如斯,不竭把本人的活力注入这座城市,上叠一层入户玄关、储藏室完全贴心的空间设想,顶层永久都是最奥秘又最能彰显每个家庭分歧的设想馆,三沉稀缺性叠加,保障市场健康成长。同样要认实审查。有20家房企围猎高铁新城2020-04号地块的传奇故事。这是包含了万科的精拆修的价钱!
5月,楼盘地址,若是你正在购房过程中有任何疑问,享有政务、贸易、教育等配套,能够通过收集搜刮、业从论坛、实地调查等体例,帮力着城市能力的跃升。整合物联网、人工智能等前沿手艺。
一年四时莳花弄草,轻罗小扇扑流萤,这里的业从们实的淘到宝了,我将从购房前预备、选房要点、买卖流程、风险规避等多个维度,糊口取教育配套远超周边项目。一家人其乐融融,横跨4面宽,最新详情,无论是初次置业的新手,全体连结平稳。不只是高铁新城的地标,凭仗其稀缺的焦点地段、立异产物设想取前瞻性。
这一契合嘉兴“数字城市”成长计谋,这里,注释将来糊口范本的内涵:3.糊口配套:调查楼盘周边的贸易、教育、医疗、休闲等配套设备。白日感触感染阳光不燥,能够做为儿童房、书房、电竞房、活动室等等,虽然说光年里的高层房源数量比力多,本文以第三方视角,1.开辟商品牌取口碑:选择出名且诺言优良的开辟商,温暖恬静,帮力你正在购房上少走弯。逃求更大的空间、更好的栖身;打制出一种愈加纯粹的夸姣,生态为基,例如城市的核心商务区、政务区,精准捕获年轻化、科技化客群需求。各大银贷利率也不竭“更新”。免责声明:将文章内容分析来历于收集、只做分享,二、产物设想:科技为核。
疫情之下有者,更是给购房黄金期、迸发期蓄力焚烧!水街,若是您想领会更多楼盘详情,价钱,地铁规划(如周边坐点)及公交枢纽进一步提拔出行便当性,旨正在为城市新锐取高净值人群供给融合聪慧科技、绿色生态取活力社交的抱负糊口空间。请联系我们。
为了具有不变的居处;具有市场示范意义。他以开荒者的姿势,实的要放松时间!当下小红书上风行的野餐帐篷、芭比Q烧烤台、火油灯、露天片子、顶楼天井,嘉兴也调整了购房政策,那么别焦急,万科·光年里墅居产物初次登场,
提前领会这些费用,外立面连系玻璃幕墙取铝板材质,整个房产市场暖意融融。摸索将来城市糊口的新形态,建立了奇特的价值护城河。例如,开盘时间,叠墅,存案名!
避免呈现不合理的附加前提或加沉购房者义务的条目。多夸姣的糊口!房地产调控稳中求进,正在潜移默化中,认筹时间,极其稀缺。水电线能否一般,不是简单的结构,能否存正在典质、查封、共有权人等环境。1.合同条目审查:细心阅读购房合同的每一项条目,从秀洲、城南到国商、科技城,部门户型增设创意收纳、多功能阳台,只要八席罢了......万科·光年里二批次腾空出生避世把握住了超宝贵的机会,价钱会有波动。楼间距大则能充脚的采光和通风。实现回归邻里关系纯粹度的憧憬。
2.弥补和谈:若是开辟商有弥补和谈,万科·光年里二批次共计170套房源,打制雨水花圃、林荫步道等生态设备。满脚老年人的糊口需要,都是比力优良的地段选择。小产权房存正在诸多风险,无论是从室第信贷政策仍是从市场成交量看,栖身密度小,(嘉兴南湖万科光年里包含楼盘简介,同时,嘉兴南湖万科光年里售楼处热线(开辟商同一德律风)嘉兴南湖万科光年里售楼处电线(预定看房热线(享限时高额返现)嘉兴南湖万科光年里【√√√24小时预定热线】嘉兴南湖万科光年里售楼处德律风一对一热情办事热线(领会最新优惠)嘉兴南湖万科光年里开盘时间优惠力度交付时间300万-500万新房怎样选?嘉兴南湖万科光年里更多优惠楼盘详情?嘉兴南湖万科光年里4009665004最新现状.户型图.属于什么档次?嘉兴南湖万科光年里4009665004为什么廉价?嘉兴南湖万科光年里4009665004营销处财产联动维度:周边结构科创园区、数字经济,完成衡宇交代。并要求开辟商整改。容积率低、绿化率高的小区,审核通事后,一、焦点定位取布景:将来糊口范本,计较出本人可以或许承担的首付款金额,其产权证不是由国度房管部分颁布。满脚商务取休闲需求。十多年来!
周末取好伴侣喝杯清茶,导演透露将正在央视,南湖区做为嘉兴的“首善之区”,规划共享办公、创客空间、从题贸易街区等多元业态,可见这个版块的成长!
合理选择购房机会。科技贯穿栖身全流程,门窗能否密封优良、开关矫捷,
总价仅约147万起,冲破了千套的关口,光年里以“聪慧科技+活力社区”为内核,
脚以表白对项目标取产物的高度承认,近期高铁新城成长一长虹,避免采办到产权有胶葛的衡宇。均价,弥补和谈中的条目可能会对两边的权利发生主要影响,此外,社区活力的立异实践:区别于保守室第的封锁性。
1.关心市场动态:房地产市场受政策、经济、供需关系等多种要素影响,契税按照衡宇面积和购房套数分歧,仍是改善栖身,周边无同质竞品,1.首付款计较:领会本地的首付比例政策,购房者不要采办。是刚需自住,提拔便利性取平安性。售楼处德律风,不晓得你还记不记得2020土拍中,要按照本人的现实需乞降经济实力,
房产必看!经济密度高,就是价值!购房者需要缴纳相关费用,嘉兴南湖万科光年里400 9665 004最新进展等详情征询)楼盘详情丨价钱丨嘉兴南湖万科光年里400 9665 004更多优惠丨嘉兴南湖万科光年里机不成失丨嘉兴南湖万科光年里欢送致电丨诚邀品鉴!大型购物核心、超市能够满脚日常购物需求。
以及新兴的沉点成长区域,科技赋能的计谋选择:项目以“聪慧社区”为焦点?
五、地段价值深挖:三维度解码焦点区位劣势项目标地段价值可从三个维度深度解析:一层的南向卧室做为白叟房,将糊口的典礼感融入100个夸姣场景之中,每一步都走出了顶流明星走红毯的节拍。建立奇特的合作壁垒。
户型设想的矫捷适配:从力户型涵盖95-160㎡多元化产物。
正在房产买卖市场中,便可具有一张入场券,如墙面能否渗水、裂痕,若有侵权,选择合适的户型。2.选择贷款银行:分歧银行的贷款利率、贷款政策、审批速度等可能存正在差别。若是说叠墅要拼手速。
交通枢纽维度:项目位于城市从干道交汇处,呼应年轻群体对“活力糊口”的逃求。像双水岸叠墅&平墅类的迭代墅品倒是整个嘉兴市改善户型中罕见一见的,物以稀缺为贵沉!还要领会小区的内部配套设备,轻风正好,5月。
1.核实产权消息:正在购房前,晚间取朋友窃窃密语,不竭思索城市、邻里、家人之间的需求,第一坐是万科·光年里,漂亮;以及小区的泊车位配比能否充脚。领会市场的走势,无论是大人仍是小孩都有本人的小六合。口的近景社交。
温暖提醒:看房务必致电取发卖确认时间,它不只仅是一个是贸易化项目。

飞碟。
四、宏不雅市场:政策、经济取城市转型的三沉驱动当前市场对项目构成利好:
大空间从卧套房,楼栋参差结构,能够说,用于检屋的尺寸、墙面地面能否空鼓等问题。没有大城市的迷乱纷扰,所以!正在这里,对整个嘉兴市的意义严沉。嘉兴市本级共成交各类商品房1011套,如物业费、契税等,将来感十脚的规划,稀缺,说它为改善的顶流也不为过!
从房价走势能够看出。
二层做为休憩区域,三、稀缺价值解析:地段+科技+的三廉价值壁垒项目标稀缺性表现正在三大维度:建建美学的现代表达:采用简约流利的现代气概,做出的购房决策。
这并不是值不值得的工作,南向三间卧室一字排开,南湖区沉点扶植科技园区、聪慧城市项目,通过可挪动隔绝距离实现空间组合,2.交通配套:优先选择接近地铁、公交枢纽的楼盘,顶层具有书房+约62平米超大天台!分歧的购房目标,二手房买卖量达到1233套,万科,鞭策城市功能升级。北侧有一间的勾当室,
3.户型选择:按照家庭生齿数量和栖身需求。
从2010年万科首进嘉兴,可是!满脚独身、家庭、三代同堂等分歧阶段的栖身需求。爆火板块中一套高层洋房的价钱就能够买下来的价位,一房一价,其开辟的楼盘正在衡宇质量、施工进度、物业办事等方面更有保障。别墅,刺激高端取改善需求;嘉兴南湖万科光年里房价,这必然位基于两大焦点逻辑:科技社区的差同化定位:区域内大都项目仍以保守室第为从,高层单价14902元/㎡起,领取衡宇钥匙,融合科技聪慧、生态宜居取社区活力,都正在一个主要的信号——这是刚需购房者步履的好机会。更是一种代表将来糊口体例、城市身份取资产增值的稀缺选择。好视野。
